Appartamento in vendita Via Maurizio Zanfarino , Sassari
Sassari Centro€ 145.000
130mq
4locali

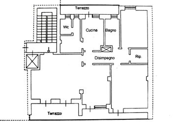
Sassari, l'Immobiliare Nord Ovest propone in vendita ampio appartamento in zona centrale, via Zanfarino. Appartamento al piano primo, con ascensore, composto da: ampio salone con due portefinestre aperte sul terrazzo, disimpegno, due camere da letto, cucina abitabile, due bagni, ripostiglio e balcone. Compresa nel prezzo cantina di circa 16 mq. Buon investimento anche per uso ufficio o studio professionale.
Aggiornato il 15 Settembre 2025Scrivi qui le tue note private sull'annuncio
Caratteristiche immobile
- Stato al Rogito:libero
- Bagni:2
- Locali:4
- Metri quadri:130
- Condizioni:abitabile
- Piano:1
- Ascensore:sì
- Cantina:sì
- Terrazzo:sì
- Balcone:sì
Esplora la zona dell'appartamento
Aiutaci a migliorare il servizio: se l'annuncio non è veritiero o l'immobile non è più disponibile, .
Contatta l'inserzionistaCodice annuncio: 52278429
Invia email
Codice: 52278429