Ufficio in affitto Via Scipione Ammirato , Firenze
Beccaria, Mazzini-Oberdan150mq

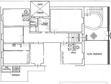
Firenze - Zona Piazza Alberti - Affittiamo prestigioso Ufficio di alta rappresentanza di circa 150mq. oltre terrazza e giardino, completamente ristrutturato con rifiniture di pregio.
L' appartamento accatastato A/10 si trova in una bella villetta, con entrata indipendente, con scale di ingresso di rappresentanza. Si sviluppa su unico livello al piano terra rialzato e presenta 6 ampie stanze di varie dimensioni, soffitti molto alti, 2 bagni, un terrazzo, un ripostiglio, un giardinetto privato.
Grandi Finestre che consentono una meravigliosa luce in ogni ambiente.
Nell'ampio corridoio di ingresso è possibile inserire un desk accoglienza.
Aria condizionata in ogni ambiente.
Ottimo per studi professionali o come sede per un Notaio.
Richiesta Euro 3.500. 00 Mensili comprensivo di spese conominiali....
Aggiornato il 11 Marzo 2026Scrivi qui le tue note private sull'annuncio
Caratteristiche immobile
- Aria Condizionata:presente
- Bagni:2
- Metri quadri:150
- Condizioni:ristrutturato
- Piano:piano rialzato
- Totale piani:1